Stages
More than just a building.
AIE STUDIOS is more than just facilities. It is a multi-faceted studio system focused on education, investment, innovation and production. It also plays an important role in building and supporting local community.
What projects can utilise the AIE Studio facilities?
- AIE Studio generated projects including student projects
- Outside projects that dry hire the facilities
Stage 1
Due for completion 2027
Overview:
Stage 1 is designed for large scale builds, vehicle work, and dynamic set rotations. The integrated 25 metre turntable allows full sets, vehicles, or practical environments to rotate during filming, enabling continuous camera movement and complex shots without repositioning large set pieces.
Features:
- Large open stage floor for major set construction
- Integrated 25m turntable for rotating environments and vehicle work
- 12m internal height for large practical builds and lighting rigs
- Full perimeter crew and equipment circulation zone
- Multiple access points for production and equipment
Specs:
- 1300 sqm space
- 38m x 28m
- 1,064sqm total stage area
- 12m ceiling height
- LED volume screens
- Revolving stage
LED volume screens:
24m diameter main wall 225 degree in curvature
- Main Wall is 225 degrees in curvature, 47 metres long and 12 metres high.
- Total wall Area is 564sqm, U or J configuration
Revolving stage:
25m diameter rotating turntable integrated into the stage floor, to allow for filming scene reversals.
Stage 2
Available now
Overview:
Stage 2 provides a versatile mid sized production space suitable for set construction, controlled filming environments, and supporting production activities. The stage connects directly with adjacent production rooms, allowing efficient coordination between filming, equipment preparation, and production teams.
Features:
- Flexible stage floor suitable for set builds and controlled lighting
- 10m internal height supporting lighting grids and practical environments
- Direct connection to production offices and equipment rooms
- Bathroom and kitchenette facilities foor crew
- Large garage style access for equipment and set loading
Specs:
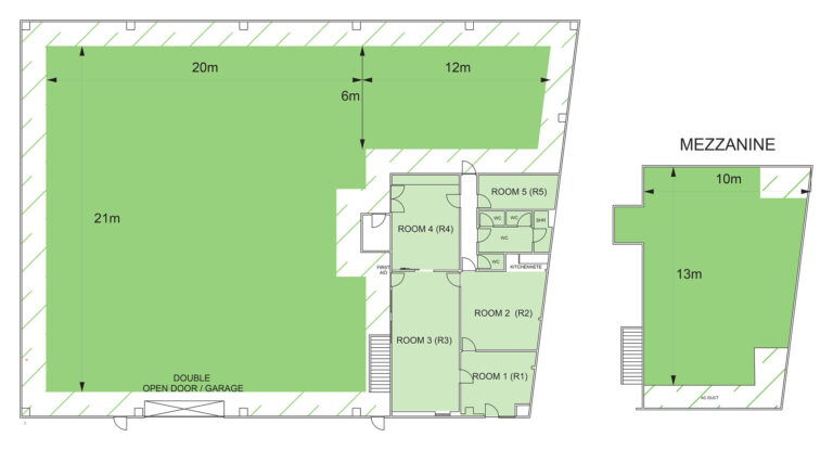
- 940 sqm studio space in a quiet area of Fyshwick
- 21m x 20m primary stage area
- 420sqm total stage area
- 10m ceiling height
- 10 minutes from the airport
- This studio also is home to our Technodolly
Support spaces:
- Production offices
- Equipment rooms
- Crew facilities
- Kitchenette and amenities
Mezzanine:
Additional mezzanine level measuring approximately 10m x 13m (130sqm) suitable for production control, viewing area, or additional workspace.
Stage 3
Due for completion 2026
Overview:
Stage 3 is a long format studio space designed for extended set builds, corridor environments, and controlled production setups. The elongated layout allows for long camera movement and tracking shots while maintaining clear circulation around the stage perimeter.
Features:
- 40m continuous stage for extended builds and camera movement
- 9m internal height supporting lighting and production rigs
- Perimeter access for crew and equipment movement
- Multiple entry points allowing flexible production setups
- It is a useful addition to the other stages
- Easy access and close proximity to Stage 1 and the workshop
Specs:
- 480 sqm space
- 40m x 10m
- 400sqm total stage area
- 9m ceiling height
- This space is on the existing AIE campus














